M8200
45
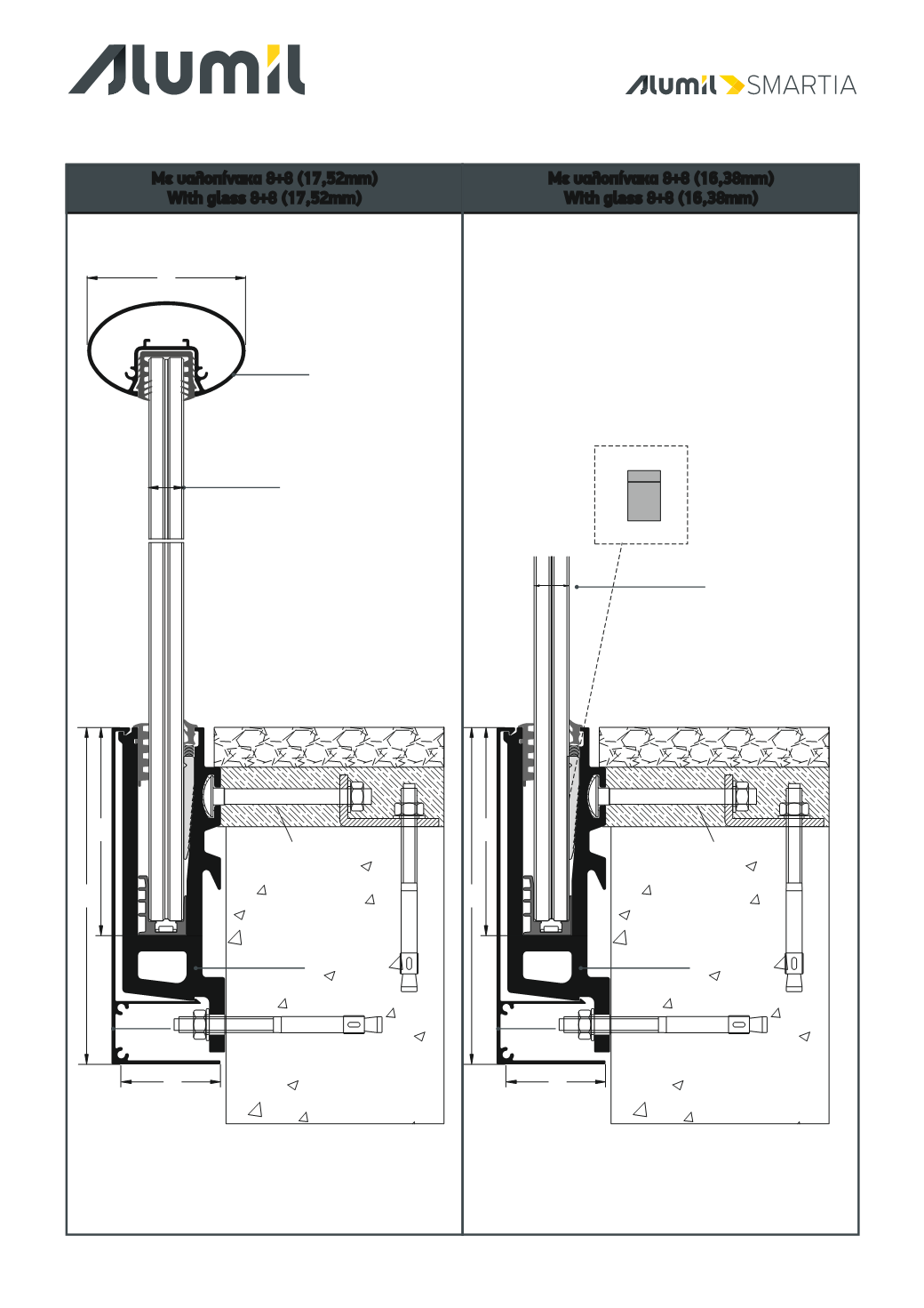
Με υαλοπίνακα 8+8 (17,52mm)
With glass 8+8 (17,52mm)
Με υαλοπίνακα 8+8 (16,38mm)
With glass 8+8 (16,38mm)
Μ8203
1563gr/m
Μ8203
1563gr/m
Μ8202-ΤΡΥ
8041gr/m
Μ8202-ΤΡΥ
8041gr/m
170
170
105
105
55
55
17,52mm
(8/1,52/8)
80
M8201
1443gr/m
Single membrαne
- Μονή µεµβράνη
4ple membrαne
- 4πλή µεµβράνη
16,38mm
(8/0,38/8)
60
90
830.60901.03
Σύστηµα για τοποθέτηση πλευρικά σε ΗΜΙΕΤΟΙΜΟ δάπεδο
Sidemount system for SEMI-FINISHED floor
200.08005.01
200.08006.01
830-58-202-00
830-58-202-00
769-08-080-00
769-08-080-00
769-08-080-00
769-08-080-00




